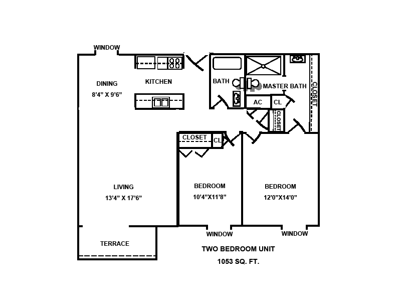
The following drawing shows floor plans for one and two bedroom units. Efficiencies are also available.

Efficiencies: 554 square feet
One Bedroom: 795 square feet
Two Bedrooms: 1053 square feet

All units have a deeded carport space and are wired for cable and phone. All Balconies are screened.




2 Bedroom Unit Layout.pdf1 Bedroon Unit Layout02282020.pdf



Printer Friendly Version
The Towers Home




Site Content © 2009, The Towers Condominiums
2366 East Mall Drive, Fort Myers FL 33901


ERMI is an environmental consulting company providing a wide range of services to help our clients achieve their business and professional goals

We offer remediation, assessment, PHI , PHII, Phase I ESA, environmental site assessment, Phase II ESA, Phase 1 ESA, Phase 2 ESA, Insurance claims, insurance investigations, environmental forensics, fingerprinting, FDEP, fdep contractor, wetlands, florida, fort myers, fl,CDF,DRF, licensed cleanup contractor,remedial action plan, professional geologist, groundwater sampling, soil sampling, groundwater, ust, petroleum cleanup, edi, plirp, pcpp,atrp,tank closure, tank pull,lust, RAPS, Remedial Design