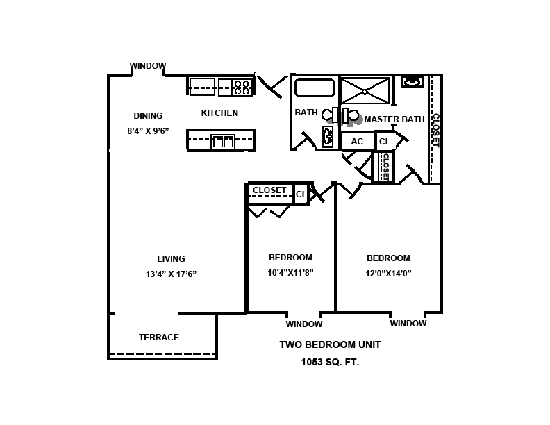
The following drawing shows floor plans for one and two bedroom units. Efficiencies are also available.
Efficiencies: 554 square feet
One Bedroom: 795 square feet
Two Bedrooms: 1053 square feet
All units have a deeded carport space and are wired for cable and phone. All Balconies are screened.

  |